Ir al contenido principal
Buscar
Buscar este blog
Marina Velasco Puente
Blog para la asignatura de Proyectos I de la ETSA de Valladolid.
Inicio
Más…
Entradas
Destacados
junio 02, 2024
ENTREGA 6 | EQUIPAMIENTO COWORKING
Entradas más recientes
mayo 26, 2024
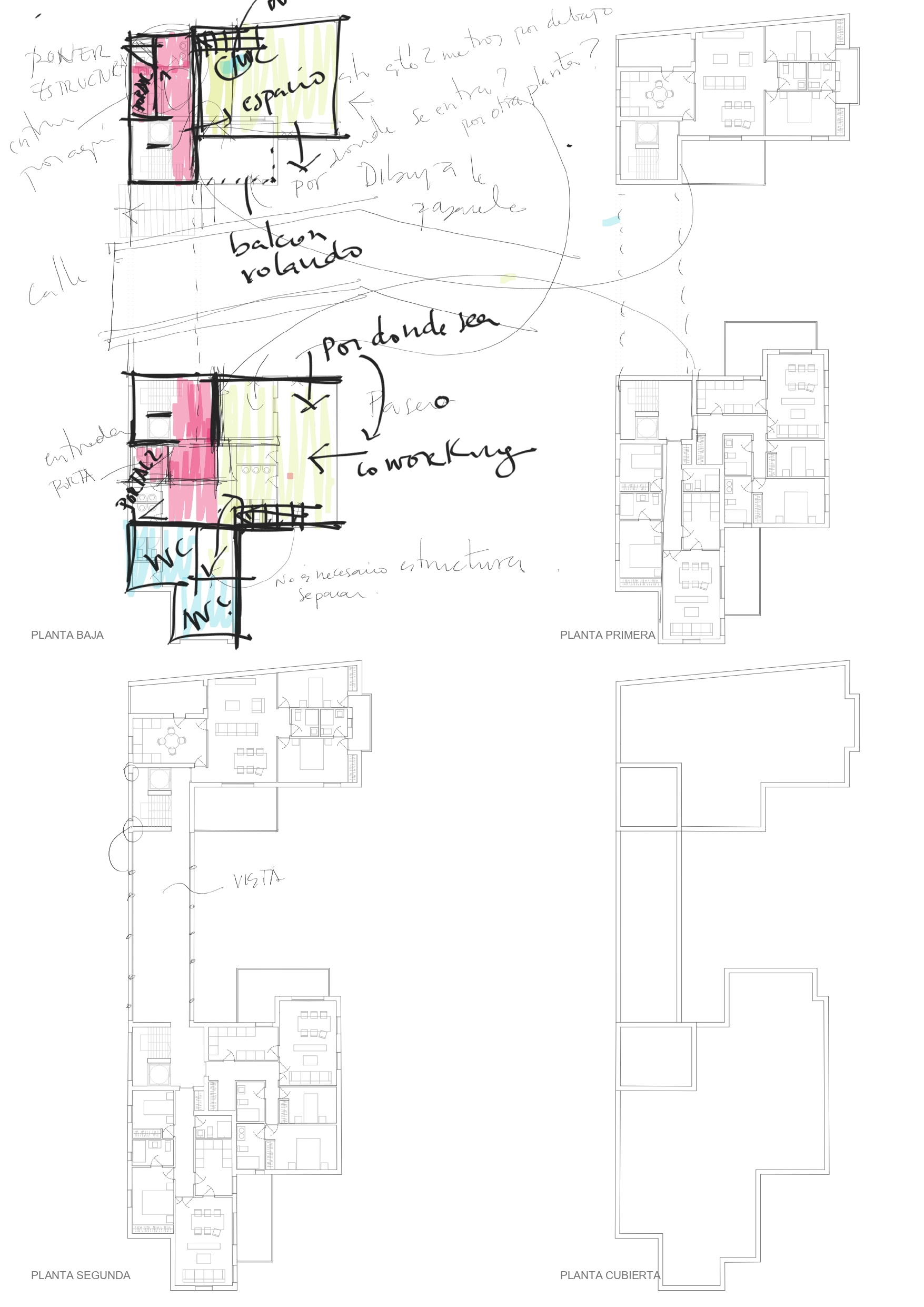
Corrección 2 | Entrega 6
mayo 19, 2024
ENTREGA 5.3 | MATERIALIDAD; AGRUPACIÓN DE APARTAMENTOS UNIDAD HABITACIONAL
mayo 05, 2024
ENTREGA 5.2 | AGRUPACIÓN DE APARTAMENTOS UNIDAD HABITACIONAL
abril 29, 2024
Corrección 3 | Entrega 5.2
abril 28, 2024
Corrección 2 | Entrega 5.2
abril 22, 2024
SEGOVIA
abril 15, 2024
Corrección 1 | Entrega 5.2
Entradas antiguas